Modern Gallery
Zgłoś naruszenie...
Wybierz jedną z poniższych opcji.
Ten komentarz dotyczy mnie lub znajomego:
atakuje mnie,
atakuje znajomego.
Komentarz dotyczy czegoś innego:
spam lub oszustwo,
propagowanie nienawiści,
przemoc lub krzywdzące zachowanie,
treść o charakterze erotycznym.
Napisz
PANEL

idealnefranczi | Obserwuj

2014-02-05

Wybó projektu

Wybór naszego domu rozpoczoł sie od przejrzenia setek projektów:)

Ostatecznie wyboru dokonywaliśmy spśród domów parterowych, a były to głównie cztery projekty:

  1. Teksas,
  2. Z 23,
  3. Anzio
  4. Franczi.

1. Zdjęcie do wpisu: Wybó projektu

Zdjęcie do wpisu: Wybó projektu

2. Z23

Zdjęcie do wpisu: Wybó projektu

Zdjęcie do wpisu: Wybó projektu

3. Anzio

Zdjęcie do wpisu: Wybó projektu

Zdjęcie do wpisu: Wybó projektu

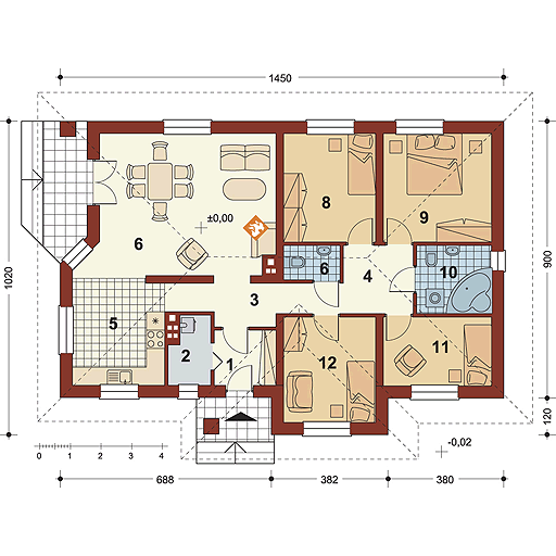
i nasze Franczi

Zdjęcie do wpisu: Wybó projektu

Zdjęcie do wpisu: Wybó projektu

Zdjęcie do wpisu: Wybó projektu

6 Komentarze
madic27  
Data dodania: 2014-02-06 07:15:32
witam na blogu!bardzo ładny projekt wybraliście!gratuluję i pozdrawiam...
odpowiedz
Data dodania: 2014-02-07 22:07:18
Dziękujemy i pozdrawiamy:)
odpowiedz
Odpowiedź do madic27
Data dodania: 2014-02-06 09:31:15
witam, my tez zaczynamy budowe Franczi. Jestesmy z kOszalina. Zaczynamy 20 marca :)
odpowiedz
Data dodania: 2014-02-07 22:13:02
Witam, my już budowę zaczęliśmy. Część wpisów będzie "z czasu przeszłego". Dopiero teraz wpadliśmy na pomysł prowadzenia bloga, ale chcemy, żeby wszytko miało swój bieg i blog zaczynała się od tego co było na samym początku. W ciągu kilku dni pojawi się kilka wpisów do momentu dachu, potem już wszytko będzie na bieżąco:)
odpowiedz
Odpowiedź do agaernestx
Data dodania: 2014-02-08 12:47:07
wrzućcie prosze jakies foty. Jesteśmy ciekawi jak am poszło :)
odpowiedz
Odpowiedź do idelanefranczi
Data dodania: 2014-02-06 13:24:04
Gratulujemy wyboru i witamy na MB :)
odpowiedz
idealnefranczi Obserwuj bloga
statystyki bloga
Odwiedzin bloga: 1028
Komentarzy: 15
Obserwują: 6
Wpisów: 6 Galeria zdjęć: 15
Projekt FRANCZI
BUDYNEK - dom wolnostojący , parterowy bez poddasza bez piwnicy
TECHNOLOGIA - murowana
MIEJSCE BUDOWY - Mzaowieckie
ETAP BUDOWY - Brak