2011-01-12
Granat - Propozycja poddasza



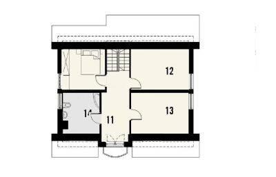
Natomiast tak wyglądać ma mój granat w środku ( własna propozycja wnętrz). Rozmiar bryły całkowitej ma pozostać tak jak w orginalnym projekcie.


A to boki
Bok lewy ( w galeri)

Bok prawy ( w galeri)

Tak właśnie miałby wyglądać mój granat ( wymarzony) Po lekkich przeróbkach.

Front

Tył
Komentarze