kolejny etap








w polowie maja zostal zaczety wykop pod fundamenty piwnic,



w polowie czerwca zostal zalany strop nad piwnia.


Witam,
co prawda zakup projektu miał miejsce w marcu, dopiero teraz zdecydowalem sie na jakie kolwiek wpisy
juz przy wyborze konkretnego domu mielismy pomysl jak wg nas ''ulepszyc projekt''
Oryginał
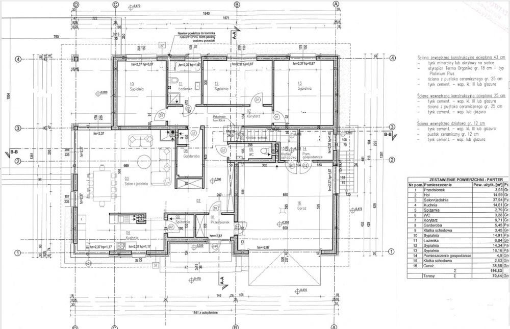
Dom wizualnie nie przypomina tego z projektu. Z przodu domu zrezygnowałem z okna w spiżarni, które bardzo ładnie wygląda, ale wydaje mi sie niepraktyczne, gdyż przychodzący goście zaglądaliby tam czego byśmy nie chcieli :). Można by w sumie zostawić okno i założyć rolety wewnątrz ale czy to ma sens? Zmieniłem również miejsce okna narożnego w kuchni i raczej będę musiał zamurować mniejsze okno kuchenne ponieważ w środku zostawiłem dwa wejścia do salonu i teraz nie ma wystarczającego miejsca na dużą lodówkę i słupek z piekarnikiem. Ze zmian zewnętrznych to również zrezygnowałem z mniejszego tarasu, przez co najmniejsz sypialnia zrobiła się największa :). W sypialni przy tarasie zostawiłem tylko jedno okno, jak dla mnie okno tarasowe w takim pomieszczeniu jest po prostu niekomfortowe.
Kolejna zmiana to przestawienie kominka w róg salonu. Po fakcie stwierdziłem, że zbędny był komin w kuchni, który zajmuje sporo miejsca.
Stwierdziłem, że jak na dwa auta garaz jest za wąski, dolozylem 0.5m, a z racji ze dach jest kopertowy, musiałem to samo zrobic z drugiej strony.
tak wiec zrobilo sie 1m szerzej.
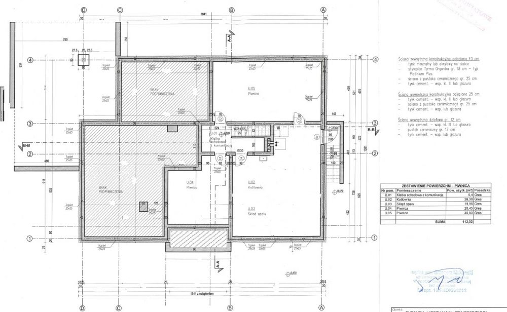
Usunalem rowniez scianke miedzy garazem a pomieszczeniem technicznym ktorego juz nie ma,
zostało przeniesione do piwnicy.
w mojej okolicy jak narazie nie ma gazu takze piec bedzie na pelet lub ekogroszek, i to mialo duzy wplyw na powstanie piwnicy.
powiekszylismy rowniez taras, stwierdzilem ze przyda sie na wieczorne posiedzenia;)
i tak oto wyglada moj E-174 2.0

w projekcie jest rowniez piwnica, jak narazie 3 duze pomieszczenia, jeszcze nie mam pomyslu jak zagospodarowac,

Komentarze