Modern Gallery
Zgłoś naruszenie...
Wybierz jedną z poniższych opcji.
Ten komentarz dotyczy mnie lub znajomego:
atakuje mnie,
atakuje znajomego.
Komentarz dotyczy czegoś innego:
spam lub oszustwo,
propagowanie nienawiści,
przemoc lub krzywdzące zachowanie,
treść o charakterze erotycznym.
Napisz
PANEL

zbyszekewelina | Obserwuj

2010-09-21

wrzesień 2010 już bez nas

we wrześniu 2010 już bez naszej pomocy (rodzice i rodzeństwo męża) zajęto się ścianami piwnicy i przygotowano je do zasypania ziemią.

Zdjęcie do wpisu: wrzesień 2010 już bez nas

tyle pracy i pieniędzy a teraz to wszystko będzie zasypane i ledwo będzie to widać z ziemi ;-)

Zdjęcie do wpisu: wrzesień 2010 już bez nas

widok od ulicy. jak widać kupa ziemi znacznie się zmiejszyła.

2010-09-21

i co dalej...

 a więc lipiec 2010 wyglądał tak...

Zdjęcie do wpisu: i co dalej...

Kochany tata Stanisław na placu boju. Kopanie, kopanie i jeszcze raz kopanie...

Zdjęcie do wpisu: i co dalej...

Mój osobisty mąż tam na dole walczy z łopatą

Zdjęcie do wpisu: i co dalej...

długo to trwało i pracy co nie miara a upał dawał się we znaki i do tego komary (zaraz po powodzi)

Zdjęcie do wpisu: i co dalej...

dzielni mężczyźni nie poddawali się i walczyli bardzo wytrwale by osiągnąć zamierzony cel

Zdjęcie do wpisu: i co dalej...

widok bardzo miły dla moich oczu

Zdjęcie do wpisu: i co dalej...

Zdjęcie do wpisu: i co dalej...

w tle widać ulicę 

Zdjęcie do wpisu: i co dalej...

a tutaj niezstąpiona i bardzo pomocna siostra mężą.

praca posunęła się na przód. Przygotowanie do wylania fundamentów i ławy fundamentowej

Zdjęcie do wpisu: i co dalej...

i oto i ona

Zdjęcie do wpisu: i co dalej...

Zdjęcie do wpisu: i co dalej...

ciąg dalszy przygotowywania zbrojenia. Naciąganie drutów i oczywiście bez wypadku się nie obeszło

Zdjęcie do wpisu: i co dalej...

jeden z dwóch niezastapionych braci mojego męża.

Zdjęcie do wpisu: i co dalej...

Kochany tata Andrzej na pierwszym planie

Zdjęcie do wpisu: i co dalej...

Widać wreszcie mury ;-)

Zdjęcie do wpisu: i co dalej...

Drugi niezastapiony brat męża wytrwale walczy przy betoniarce

Zdjęcie do wpisu: i co dalej...

Zdjęcie do wpisu: i co dalej...

Zdjęcie do wpisu: i co dalej...

Zdjęcie do wpisu: i co dalej...

Zdjęcie do wpisu: i co dalej...

Zdjęcie do wpisu: i co dalej...

Zdjęcie do wpisu: i co dalej...

widok z tyłu domu na ulicę którą zasłoniła wielka kupa ziemi

Zdjęcie do wpisu: i co dalej...

Zdjęcie do wpisu: i co dalej...

szalunki i stęple już prawie skończone

Zdjęcie do wpisu: i co dalej...

Zdjęcie do wpisu: i co dalej...

Zdjęcie do wpisu: i co dalej...

Zdjęcie do wpisu: i co dalej...

Zdjęcie do wpisu: i co dalej...

klatka schodowa z wyjściem z tyłu domu

3 Komentarze
monika
Data dodania: 2010-09-27 20:11:25
piwnica
Po obejrzeniu zdjęć Waszej piwnicy zdziwił mnie fakt, że zbudowaliście ściany fundamentowe z pustaków a nie z kostki betonowej. Z tego co mi wiadomo, suporeks ma dużą nasiąkliwość, co w przyszłości może spowodować wilgoć w domu. A gdzie macie hydroizolację? Nie zauważyłam, aby fundamenty były zabezpieczone przed wilgocią.
odpowiedz
Data dodania: 2010-10-02 12:22:19
piwnica
Witaj Monika! Materiał na piwnicę jak i na resztę domu polecił nam nasz architekt. Jesli chodzi o hydroizolację to na zdjęciach jeszcze jej nie ma ale jest już prawie w całości skończona i dopiero wtedy ziemia będzie zepchnięta pod ściany. Dziękuję Moniko że napisałaś, pozdrawiam Cię serdecznie i czekam na dalsze uwagi.
odpowiedz
Data dodania: 2010-10-06 20:09:26
Serdecznie witamy
Witam gorąco nowych dorotkowiczów... Mam nadzieje że mury wam się same będą pieły do góry ;) Wtrące jeszcze swoje trzy grosze, a mianowicie co do tych suporeksów to OK, ale nie wiem jak wam doradził arhitekt ale widze u was trudne warunki gruntowe, występowanie gliny nie dość że zmniejsza nośność ław to jeszcze jest narażone na wysadzinowe działanie podczas mrozu ze zdjęć wynika że budynek w połowie będzie zasypany a połowa stoi bezpośrednio na powierzchni gruntu, nie jest to zbyt dobre rozwiazanie. Poza tym wykonajcie drenaż od strony nasypu ograniczy to napór wody opadowej (wanna z gliny) na ściany z suporeksu co przedłuży jego żywotność o kilkadziesiąt lat...
odpowiedz
2010-09-21

początek

Witam serdecznie wszyskich blogowiczów i gości a przde wszystkim tych co budują DOROTKĘ.

A więc...

...stało się zaczęliśmy realizować swoje plany i marzenia.

We wrześniu 2008 roku kupiliśmy działkę na której wybudujemy nasz domek.

W lutym 2009 zaczęła się długa droga związana z biuroktacją.

W sierpniu 2009 roku podjęliśmy jedną z najważniejszych decyzji w życiu i wybraliśmy projekt naszego domu - Dorotkę.

W styczniu 2009 wprowadziliśmy zmiany do wybranego przez nas projektu.Zdjęcie do wpisu: początek

PARTER ze zmianami

Zdjęcie do wpisu: początek

PODDASZE ze zmianami

Zdjęcie do wpisu: początek

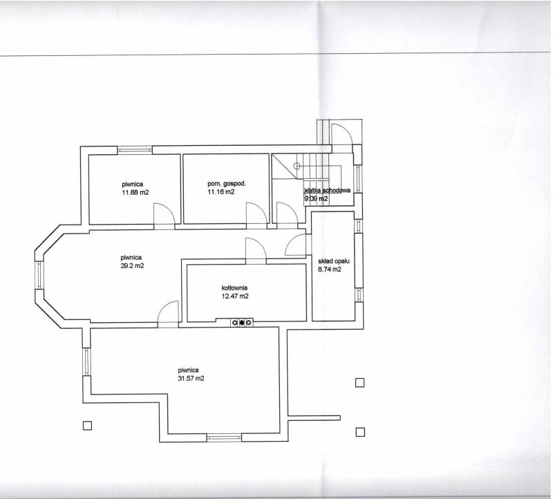
PIWNICE które zostały doprojektowane

 

We wrześniu 2009 zakupiliśmy zdecydowaną część materiału na budowę naszego domu.

W lipcu 2010 ruszyła wreszcie budowa...

 

2010-09-21

podróże

 Dalekie trzeba podejmować podróże, kochając swoje domostwo.
 

Guillaume Apollinaire — Gra w klasy 

2010-09-21

Dom

Najważniejsze jest, by gdzieś istniało to, czym się żyło: i zwyczaje, i święta rodzinne. I dom pełen wspomnień. Najważniejsze jest, by żyć dla powrotu.

Antoine de Saint-Exupéry
 

zbyszekewelina Obserwuj bloga
statystyki bloga
Odwiedzin bloga: 3083
Komentarzy: 6
Wpisów: 5 Galeria zdjęć: 34
Projekt DOROTKA
BUDYNEK - dom wolnostojący , parterowy z poddaszem z piwnicą
TECHNOLOGIA - murowana
MIEJSCE BUDOWY - Grodzisko Dolne
ETAP BUDOWY - I - Fundamenty